오늘은 전기 판넬 설계 내용 중 Single Line Diagram(싱글 라인 다이아그램)에 대해서 이야기 해 보겠습니다. Single Line Diagram은 정말 많이 들어보셨을 것 같아요. SLD라고 부르기도 하죠. 오늘은 저압 Load Center에서 MCC까지의 Single Line을 알아보도록 하겠습니다.
1. Single Line Diagram이란?
먼저 Single Line Diagram이 무엇인지에 대해서 이야기 해 보겠습니다. Single Line Diagram은 직역하면 단선 결선도라고 합니다. 풀어서 설명해 보자면 우리가 가정에서 사용하는 건 단상으로 케이블이 2가닥이고 산업현장에서 사용하는 건 삼상으로 케이블이 3가닥이거나 4가닥입니다. 그런데 이 케이블 각 가닥수를 모두 표현하는게 아니라 한가닥으로 표현한 도면이라고 생각하시면 됩니다. 그리고 중간중간에 사용하는 계전기들을 심볼로 표현하면 Single Line Diagram이 됩니다.
2. Single Line Diagram Symbol
그럼 Single Line Diagram에서 사용하는 Symbol(기호)에 대해서 알아보도록 하겠습니다.





화면이 작아서 잘 안보이실 수도 있는데 클릭하셔서 크게 보시기 바랍니다. 그리고 모든 도면에서 위 심볼 기호를 전부 다 사용하는 것은 아닙니다. 그리고 발주처나 프로젝트마다 약간씩 심볼이 다르지만 그건 도면이 시작될때 심볼 & 레전드로 선언해 주면 되는 것이니 크게 신경쓰지 않으셔도 됩니다. 중요한것은 어떠한 흐름으로 Single Line이 그려지는지가 중요 합니다.
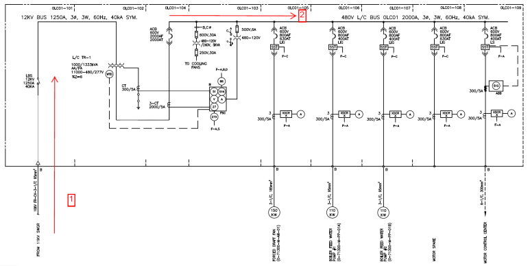
3. Load Center Single Line Diagram
그럼 Load Center Single Line Diagram을 한번 보겠습니다.

위 도면을 보면 1번 화살표 방향으로 1차측 전원이 인입되어 2번 화살표 방향으로 각 부하별로 배전됩니다. 그럼 순서대로 하나씩 볼까요?

먼저 위와 같이 Load Center로 인입되는 1차측 전원은 11kV SWGR에서 오는걸로 되어 있습니다.

이렇게 고압 SWGR에서 수전받은 전원은 LBS를 거쳐서 저압으로 변환하기 위해 TR로 들어가게 됩니다. 여기서 LBS는 Load Break Switch의 약자로 부하개폐기를 의미합니다. 수변전판넬의 인입구에 주로 설치가 됩니다. LBS의 실물 사진은 아래와 같습니다.

LBS는 사용자가 직접 전원을 연결하거나 차단할 수 있지만 사고시 차단능력은 없습니다. 그리고 부하상태에서도 개폐능력이 있지만 아크 소호능력이 현저히 떨어지므로 무부하 상태에서 개폐하는 것을 기본으로 합니다.
이제 TR을 거쳐서 우리가 3상 480V 저압전원을 만들고 Load Center 메인 차단기인 ACB를 거치게 됩니다.

이렇게 ACB를 거친 480V전원을 위와 같이 다시 TR을 사용해 120V로 낮춘뒤 TR을 감시하는 아래 계전기의 컨트롤 전원으로 사용합니다. 만약에 우리가 3상 4선식 380V를 사용한다면 굳이 TR을 따로 사용하여 120V로 낮춘 뒤 컨트롤 전원으로 사용하지 않고 단상 220V를 바로 뽑아 내어 컨트롤 전원으로 사용할 수 있지만 이 프로젝트는 480V 3상 3선식이기 때문에 어차피 컨트롤 전원용 TR을 하나 설치해야 합니다. 그래서 단상 120V를 사용하는 것입니다.


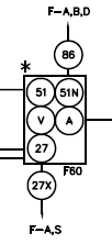
계전기Function Number에 대한 정보는 아래 테이블을 참고하기 바랍니다. V는 전압, A는 전류입니다.

이렇게 TR로 변환된 후 메인 ACB를 거치고 나면 이제 각 부하별로 분기되어 배전됩니다.

분기되어 배전될 때도 모두 ACB를 사용하였습니다. 만약에 MCCB를 사용했다면 우리는 과전류 차단을 위해 EOCR과 MC를 조합하여 MCCB와 같이 사용을 했어야 했을 겁니다. 하지만 요즘은 ACB 하나로 고장전류와 과전류를 한꺼번에 차단하는 추세입니다. ACB가 자리를 많이 차지하긴 하지만 그만큼 더 신뢰성이 높고 안전하기 때문입니다. 제일 오른쪽 마지막에 보면 MCC(Motor Control Center)로 가는 Feeder가 보입니다. 거기는 단독 부하가 아니기 때문에 특별히 51G계전기가 추가로 달려있는것을 확인 할 수 있습니다.

51G 계전기는 Ground sensor relay로 MCC로 넘어간 전원들의 접지상태 등 지락, 누전등의 상태를 감시합니다. 그럼 이제 MCC 판넬의 Single Line도 한번 보겠습니다.
4. MCC Single Line Diagram

크게 어려운것은 없습니다. Load Center에서 인입된 전원을 계기용 PT와 계기용 CT를 이용하여 V meter와 A meter로 표시하여 주고, 각 부하로 분기하여 줍니다. 일반부하에는 MCCB 차단기를 설치하여 주고, PUMP같은 전동부하에는 EOCR과 MC를 이용하여 과전류에 대한 예방도 하도록 합니다. 이제 Single Line Diagram에 대해서 어느정도 감이 잡히셨죠? 그런데 여기서 가장 중요한 내용이 빠졌습니다. "ACB, MCCB같은 차단기와 케이블의 용량은 어떻게 산정하는가?" 입니다. 이번 전기설계에 대한 포스팅은 기술적인 내용보다는 설계의 흐름에 초점을 맞췄기 때문에 기술적인 내용까지 전부 언급하기에는 내용이 너무 길어 집니다. 그렇지만? 이 내용은 이미 준비가 되어 있습니다. 아래 포스팅을 참조하시기 바랍니다.
분기회로 (저압) 케이블 사이즈 선정
오늘부터 전기회로(간선 및 분기회로)의 차단기와 케이블을 선정하는 과정을 찬찬히 같이 알아보도록 하겠습니다. 그중에서 오늘은 최종 말단부하와 직접 연결되는 저압 분기회로의 케이블 사
mech19.tistory.com
분기회로 (저압) 차단기 용량 선정
이번 포스팅에서는 분기회로에서 최종 말단 부하를 직접 보호하기 위해 설치되는 저압 분기회로 차단기의 용량을 선정하는 방법을 이야기해 보겠습니다. 차단기 용량선정 과 케이블 사이즈
mech19.tistory.com
간선 차단기 용량 / 케이블 사이즈 (전선 굵기) 선정 #1
이번시간에는 간선의 차단기 용량과 케이블 사이즈 (전선 굵기)에 대해서 알아보겠습니다. 간선은 여러개의 분기회로가 모여 더 많은 전력을 전달하는 분기회로 상위단의 회로를 의미합니다.
mech19.tistory.com
간선 차단기 용량 / 케이블 사이즈 (전선 굵기) 선정 #2
오늘은 지난 포스팅에서 알아보았던 저압간선의 차단기용량과 케이블사이즈를 설계하는 방법을 직접 실제로 계산하여 진행해 보겠습니다. 아래의 이전 포스팅을 통해 간선 설계의 절차에 대해
mech19.tistory.com
위 포스팅 외에도 "전기 설계 자료" 카테고리에 보시면 차단기 용량 설계와 케이블 사이즈 설계에 대한 여러가지 내용이 포스팅 되어 있으니 참고 하시기 바랍니다. 자 오늘은 이렇게 Single Line Diagram에 대해서 이야기 해 보았습니다. 다음시간에는 Panel Lay Out인 Out line Diagram에 대해서 이야기 해 보겠습니다. 주변에 레퍼런스 프로젝트 자료를 항상 많이 탐독하고 왜 이렇게 설계했을까 등의 고민을 하는 것이 실력향상의 지름길 임을 잊지마시고, 오늘도 쉼없이 하루하루 정진해 나갑시다. 감사합니다.
제 블로그를 방문해 주셔서 감사합니다.
도움이 되셨다면 공감(좋아요) 부탁드리고,
댓글은 다른분들께도 좋은 정보일 수 있으니
공개로 부탁드립니다.
여러분의 작은 정성이 좋은 포스팅을 생산하는
힘이 된답니다. :)
감사합니다.
'전기 > 전기 설계' 카테고리의 다른 글
| 전기 설계 7 - 전기 판넬 설계 #4 (Three Line Diagram, Schematic Diagram) (0) | 2022.08.08 |
|---|---|
| 전기 설계 6 - 전기 판넬 설계 #3 (OutLine Diagram, Schematic Diagram) (0) | 2022.08.05 |
| 전기 설계 4 - 전기 판넬 설계 #1 (Incoming Panel, Load Center, PDP, MCC 개념잡기) (0) | 2022.08.01 |
| 전기 설계 3 - Cable Tray Layout (케이블 트레이 레이아웃) (2) | 2022.07.27 |
| 전기 설계 2 - Cable Schedule (케이블 스케쥴) (0) | 2022.07.01 |
댓글