이번시간에는 Cable Tray Layout(케이블 트레이 레이아웃)에 대해서 이야기 해 보겠습니다. 이 설계 도면의 목적은 케이블을 포설할 Tray의 설치 정보를 나타내는 것입니다. 그렇기 때문에 이 도면의 이름은 여러가지가 됩니다. 제 주관적인 관점에서 가장 기본이 되는 이름은 Cable Tray Layout(케이블 트레이 레이아웃)이고 그냥 Tray Layout(트레이 레이아웃)으로도 부르고, Raceway Layout(레이스웨이 레이아웃)이라고도 부릅니다. 케이블의 경로를 만들어 주는 도면은 거의 비슷하다고 생각하시면 됩니다.
이 케이블 트레이 레이아웃을 이용하여 공사에 사용될 케이블의 길이를 계산할 수 있기 때문에 이전시간에 알아보았던 Cable Schedule(케이블 스케쥴)과 동시에 설계를 진행해야 합니다. 그럼 본격적으로 한번 알아보겠습니다. Cable Tray Layout은 생각보다 할게 많아서 체계적으로 설명하기 조금 힘드니 편안한 마음으로 한번 쭉~ 읽어보신다는 느낌으로 읽어보세요.
1. Cable Tray Layout 양식

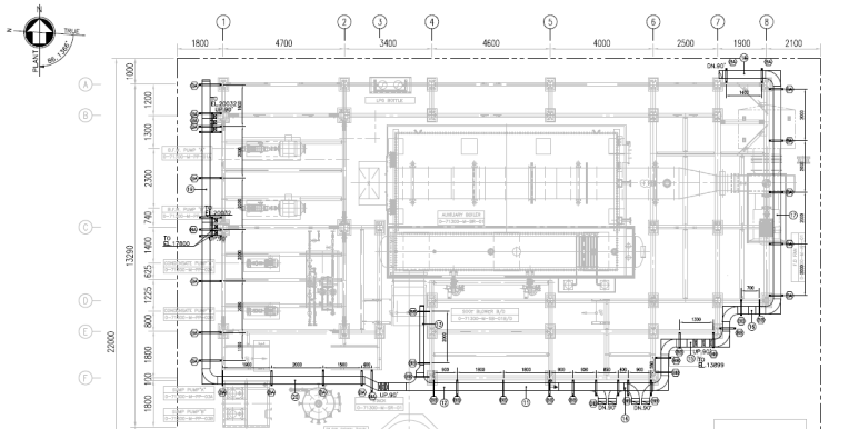
먼저 실제케이블 트레이 레이아웃은 위와 같이 경로를 일단 쭉 그려줍니다. 그런데 자세히 보시면 사이즈가 바뀌죠? 사이즈 바뀌는 부분을 한번 볼까요?

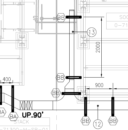
위와 같이 케이블 분기도 하고, 레듀서 트레이도 사용하여 사이즈도 줄입니다. 그리고 Up.90'이라고 되어 있는 부분도 보이네요. 이건 수직으로 트레이가 올라갔다는 이야기 입니다. 그런데 네모에 엑스박스 표시가 3개가 있죠? 90도 수직으로 올라간 트레이가 3개 단이라는 이야기 입니다. 지금 위 도면은 Top View라서 안보이지만 실제로는 3단 트레이라서 그렇습니다. 그럼 UP.90'이 있으니 Down.90'e도 있는거 아닌가? 라고 생각이 들 수도 있겠죠? 맞습니다. 올라가는게 있으면 내려오는것도 있어야죠.

일단 예시로 Down 90'은 DN.90'으로 표기했다는 것을 보여드린 것이고, 1층에서 UP.90'으로 트레이를 올렸으면 2층에서는 같은 위치에서 DN.90'으로 표기가 되겠죠?

그리고 다시 이 도면에서 보면 12 라고 써있고, 13 이라고도 써있죠? 그리고 BA, BB라고도 써있네요. 일단 12, 13이라고 써있는 건 아래와 같은 트레이 넘버링 입니다.

트레이 넘버링은 또 아래와 같은 체계를 따릅니다. 이러한 체계는 발주처나 사업주마다 다르기 때문에 꼭 시방서(기술규격서)를 확인하고 따라주어야 합니다.

이렇게 작성된 트레이 넘버링에는 트레이의 위치, 트레이가 사용되는 목적, 트레이의 사이즈 등의 정보가 포함됩니다. 그리고 별도로 바텀 트레이 기준의 높이정보도 명시하여 줍니다. 중요하니까 꼭 명시하도록 합니다. 그 다음 아까 위에서 보았던 BA, BB가 무엇인지 알아보겠습니다.

바로 SUPPORT TYPE별 DETAIL 정보 번호 입니다. 3단 트레이를 설치할 때 사용하는 서포트 설치 방법 및 이격거리등이 나와 있습니다. 그런데 여기 또 번호가 적혀있네요. 1A, 1C, 2, 12 등등 이건 또 뭘까요?

바로 이러한 설치 Detail 도면 번호 입니다. 복잡하죠? 이런 자료들은 레퍼런스 프로젝트것을 사용하여 조금씩 프로젝트에 맞게 수정해 나가면서 사용해야 합니다. 프로젝트 새로 시작할 때 마다 그릴 순 없어요. 정말 오래 걸립니다. 그리고 TRAY SUPPORT의 경우 TRAY 내부에 들어갈 케이블의 무게까지 고려해서 충분히 튼튼하게 설계를 해야 합니다. 충분히 튼튼한지 어떻게 아냐구요? 원래라면 각 트레이 포인트 별로 케이블 하중을 계산하여 하중분석을 해야하겠지만 그렇게 까지 하면 시간과 돈이 너무 많이 소비됩니다. 그래서 이것도 레퍼런스 자료를 따라가도록 합니다. 대형 트레이 300이상의 사이즈일 경우에는 단순 C형 찬넬이 아닌 ㄷ자 빔을 사용하고 소형 트레이에 C형 찬넬을 사용 할때는 맞대기 용접으로 더블로 보강을 해주는 등의 여유있게 하중을 버틸 수 있도록 설계하는 것이 좋습니다. 향 후에 유지보수 할 때 트레이를 밟고 올라가는 일도 비일비재 하기 때문입니다.
그리고 아까 Top View만 보았죠? Top View는 각 층마다 그려주도록 합니다. 그리고 Side View도 필요합니다. Side View는 각층의Top View와 연계하여 보았을 때 Cable Tray 설치 상황을 누구나 쉽게 알아 볼 수 있어야 합니다. 그래서 최소 2개 이상의 Side View가 있는 것이 좋습니다. 저는 이 프로젝트의 경우 Side View를 3개를 그렸습니다.



이렇게 연계시켜서 보면 전체적인 트레이 설치 구조를 확인 할 수 있습니다. 이제 케이블 트레이 레이아웃 도면의 기본적인 내용을 확인하였습니다. 어떤 내용들이 포함되는지 살짝 감이잡히시나요? 그렇지만 이게 전부가 아닙니다. 추가적으로 어떤내용들이 더 들어가야 하는지 한번 알아보겠습니다.
2. Cable Tray Layout 추가내용
1) Tray Detail
먼저 트레이 상세 도면이 추가되어야 합니다.


프로젝트 공사시에 사용 할 트레이와 그 부속 도면들의 상세 도면이 모두 들어가 있어야 합니다.
2)Tray Fill Report

그 다음으로는 Tray Fill Report(트레이 필 레포트)가 포함되어야 합니다. 중 소규모 프로젝트의 경우에는 트레이 면적을 여유있게 잡아두고 Fill Report는 넘어가는 경우가 많지만 대형 프로젝트의 경우에는 필수로 제출해야 합니다. 양이 많을 경우에는 아예 DCL 넘버를 따로 따서 제출하는 경우도 있습니다. Fill %를 구하는 방법은 해당 트레이에 지나가는 케이블 단면적을 모두 더한뒤에 케이블 트레이 단면적의 몇퍼센트를 차지하는지 확인하면 됩니다.Fill Report에서 Fill %를 계산하는 방법은 나중에 직접 한번 연습해 보도록 하겠습니다. 어렵지 않습니다.
오늘은 이렇게 Cable Tray Layout 도면에 대해서 한번 알아보았습니다. 어렵진 않지만 꽤 많은 정보가 담기는 도면입니다. Load List부터 Cable Schedule과 Cable Tray Layout은 현장 공사에서 굉장히 중요한 부분이기 때문에 레퍼런스 자료를 보면서 한번 직접 위에서 언급한 포인트들을 매칭시켜 보며 확인해 보시기 바랍니다. 그럼 오늘은 여기까지 하겠습니다. 감사합니다.
제 블로그를 방문해 주셔서 감사합니다.
도움이 되셨다면 공감(좋아요) 부탁드리고,
댓글은 다른분들께도 좋은 정보일 수 있으니
공개로 부탁드립니다.
여러분의 작은 정성이 좋은 포스팅을 생산하는
힘이 된답니다. :)
감사합니다.
'전기 > 전기 설계' 카테고리의 다른 글
| 전기 설계 5 - 전기 판넬 설계 #2 (Single Line Diagram, SLD) (3) | 2022.08.03 |
|---|---|
| 전기 설계 4 - 전기 판넬 설계 #1 (Incoming Panel, Load Center, PDP, MCC 개념잡기) (0) | 2022.08.01 |
| 전기 설계 2 - Cable Schedule (케이블 스케쥴) (0) | 2022.07.01 |
| 전기 설계 1 - Load List (부하 리스트) (3) | 2022.06.29 |
| 전기 설계 - DCL (Document List) (1) | 2022.06.27 |
댓글