오늘은 "Instrument Plot Plan"에 대해서
알아보겠습니다.
다른 말로는 "Instrument Location DWG"라고도 합니다.
간단하게 얘기하면 계기들의 설치위치에 대한
정보를 나타내는 도면이라고 생각하시면 됩니다.
계기들은 P&ID와 Mass Blance를 통하여
선정되고 난 뒤에,
"Instrument List" 혹은 "Instrument Schedule"을 통하여
리스트화 시키고,
상세 스펙을 개별 Data Sheet로 정리를 한 뒤에
그 정확한 설치위치는
"Instrument Plot Plan"에 나타낸다고
보시면 됩니다.
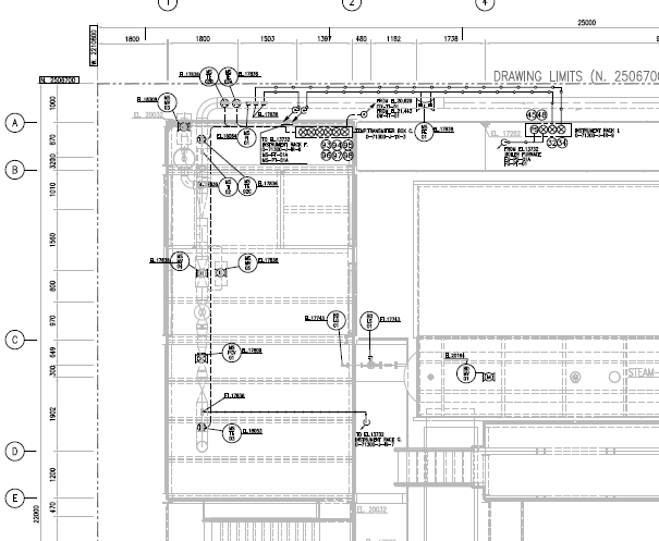
일단 대충 전체적인 느낌을 먼저 보겠습니다.

복잡해 보이지만 간단한 도면이니
개념만 확실히 잡는다고 생각하십시오.
먼저 밑바탕이 되는 도면은 GA도면입니다.
건축도면에 기계(배관)도면을 입힌 GA도면위에
우리 Instrument 위치를 잡습니다.
(참고로 계기뿐 아니라 제어밸브와 밸브의 Limit Switch도
함께 표기합니다.)
먼저 몇가지 심볼을 볼께요.








이것보다 훨씬 다양한 심볼이 있지만
필요할때 추가하거나 더 알아보면 됩니다.
특별히 어려운 심볼도 보이지 않습니다.
그럼 이제 도면에 어떻게 표기하는지
알아보겠습니다.

계기를 한곳에 모아서 보호하기 위해서
Instrument Rack Panel을 설치했다고 가정하고
그 안에 Transmitter를 설치하면
위와 같이 사각박스 안에 트랜스미터 심볼을 그리면 됩니다.
만약에 Rack Panel이 없다면 Transmitter 심볼만
그리면 됩니다.
저 위치가 Instrument를 설치할 위치가 되는 것입니다.
Instrument Rack Panel이 뭔지 모르시는 분들을 위해
사진을 한장 첨부하겠습니다.

이런식으로 Panel 안에 계기를 설치하는 것입니다.
보호 목적도 있고, 관리의 편리함이나,
Local에서도 한눈에 해당 설비의 정보를 확인하기 위한
목적도 있습니다.
다만 돈이 더 많이 들겠지요. ㅎㅎㅎ
저러한 Rack Panel도 각각 Tag No.가 부여됩니다.
일단 위 도면에서 아래부분만 따로 보겠습니다.

이 부분이 트랜스미터로부터
임펄스 라인이 연결되는 심볼입니다.
위와 같은 경우 UP을 표현하기 때문에
트랜스미터가 설치된 층보다 더 윗층으로
임펄스라인이 올라간다고 보시면 됩니다.
임펄스 포인트가 더 상층에 위치한 경우가 되겠죠.
임펄스 라인 : 도압관이라는 의미로 압력을 전달받기 위해
설치하는 튜빙라인
임펄스 포인트 : 배관 혹은 탱크 같은 시설물 속의 유체의
압력을 측정하기 위해 만든 포인트.
그리고 최종적으로
PLC나 DCS와 연결되는 케이블 라인을 표시해주면 되는데
케이블 라인의 경우 아래와 같이
케이블 트레이까지 연결되는 모습을 표현하면 됩니다.

위 상황의 경우 높이 5m부분에 설치되어 있는
트레이에 전선관이 연결되고
트랜스미터에는 플렉시블관이 연결되어 있는
모습을 표현한 것 입니다.
쉽죠?
그리고 각 번호마다의 정보를
아래와 같이 Note.로 표기해주면 됩니다.

정리하자면...
계기 위치를 잡고 심볼로 표시 한 뒤에,
임펄스 포인트를 확인하고, 인펄스 라인을 그리고,
케이블 트레이 위치를 확인하고, 전선관 라인을 그리면 됩니다.
그리고 각 심볼과 넘버에 대한 정보와
EL.(높이)에 대한 정보를 Note.로 기입하면 됩니다.
계기가 많으면 복잡하긴 하지만
어렵지는 않은 설계작업입니다.
일단 건축 및 기계 GA도면을 보면서
설비를 전체적으로 머릿속에 그려보는 연습을 해야 합니다.
오늘은 여기까지 입니다.
내용이 쉽다보니 금방 끝났네요. ㅎㅎ
제 블로그를 방문해 주셔서 감사합니다.
도움이 되셨다면 공감(좋아요) 부탁드리고,
댓글은 다른분들께도 좋은 정보일 수 있으니
공개로 부탁드립니다.
여러분의 작은 정성이 좋은 포스팅을 생산하는
힘이 된답니다. :)
감사합니다.
'계장 > 계장 설계' 카테고리의 다른 글
| PLC Panel 상세설계 #1 ( 판넬 설계 하는 방법 ) (3) | 2022.03.25 |
|---|---|
| 계장 설계 10 - PLC Panel dwg (PLC 판넬 도면) (0) | 2022.02.25 |
| 계장 설계 8 - LOGIC & LOOP 설계 #4 (CONTROL LOOP DIAGRAM) (1) | 2022.01.05 |
| 계장 설계 7 - LOGIC & LOOP 설계 #3 (CONTROL LOOP DIAGRAM) (0) | 2022.01.04 |
| 계장 설계 6 - LOGIC & LOOP 설계 #2 (CONTROL LOGIC DIAGRAM) (0) | 2021.12.28 |
댓글